
Four-Level Four Post Parking Lift
Quad Stacker Vertical Parking System
The Four-Level Four Post Parking Lift is a high-capacity parking solution designed to maximize parking space by stacking up to four vehicles vertically within a compact footprint.
With a robust four-post structure and a reliable hydraulic lifting system, this parking lift delivers stable operation, high load-bearing performance, and long-term durability. It is an ideal solution for projects that require maximum parking capacity in limited spaces.
This system is suitable for residential buildings, commercial parking garages, and vehicle storage facilities where efficient land utilization and reliable operation are essential.
Main Features & Advantages
Four-Level Vertical Parking Design
Allows up to four vehicles to be parked vertically within one footprint, significantly increasing parking density and land utilization.
Heavy-Duty Four-Post Structure
The four-post steel structure provides excellent stability and balanced load distribution, ensuring safe operation and long service life.
Hydraulic Lifting System with Synchronization
The hydraulic lifting system ensures smooth, synchronized, and reliable vertical movement, even under full load conditions.
Mechanical Safety Lock System
Equipped with mechanical safety locks that securely hold platforms at multiple parking heights, preventing accidental descent during parking and storage.
Anti-Slip Platform Design
The platform surface is designed with anti-slip features to ensure vehicle stability during parking and lifting operations.
Push-Button Control Operation
Simple and intuitive push-button control allows easy and safe operation for daily parking use.
Typical Applications
The Four-Level Four Post Parking Lift is commonly used in:
- Residential buildings and housing complexes
- Commercial parking garages
- Office buildings and mixed-use developments
- Long-term vehicle storage facilities
It is especially suitable for projects that require maximum parking capacity within limited available space.
Safety Design Concept
Safety is a fundamental focus in the design of the Four-Level Four Post Parking Lift.
The system integrates mechanical safety locks, limit switches, and emergency stop devices to ensure controlled and secure operation throughout the lifting process.
The rigid four-post structure provides stable load support at every parking level, ensuring reliable protection for vehicles and operators.
Installation & Site Requirements
- Suitable for indoor installation
- Reinforced and level concrete foundation required
- Sufficient ceiling height to accommodate four parking levels
- Power supply configurable according to local electrical standards
Detailed installation drawings and technical support are provided prior to shipment to ensure smooth installation and reliable long-term operation.
Why Choose Us
- Professional manufacturer specializing in multi-level parking systems
- Extensive experience in international parking projects and exports
- Flexible customization for platform size, load capacity, and lifting height
- Strict quality control and reliable product performance
- Comprehensive technical support before and after delivery
We are committed to delivering safe, high-capacity, and space-efficient parking solutions tailored to your project needs.
Looking for a High-Capacity Parking Solution?
Share your site dimensions, ceiling height, and vehicle requirements with us. Our engineering team will provide:
- A customized four-level parking solution
- Detailed drawings and technical specifications
- A clear and competitive quotation
👉 Contact us today to learn more about our Four-Level Four Post Parking Lift.
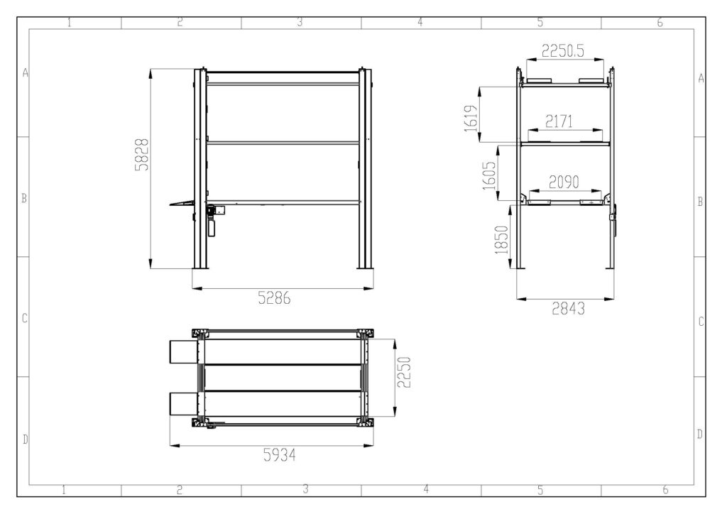
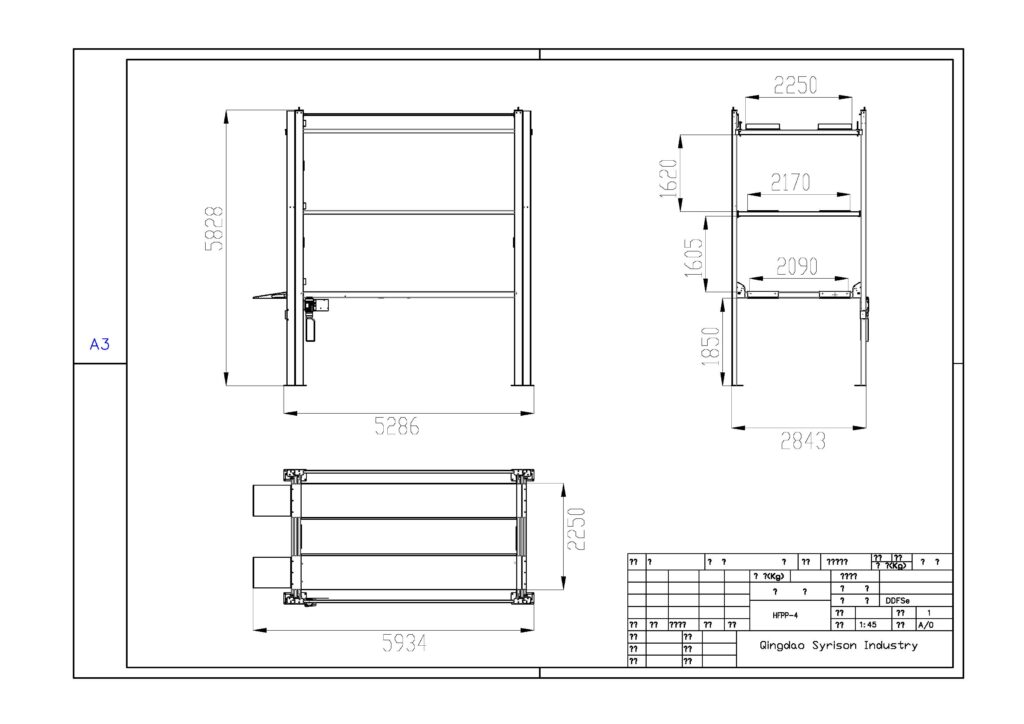
Size Drawing:

Data Sheet:
| Model | HFPP-4 |
|---|---|
| Lifting capacity | 2000kg per level |
| Lifting height | 1850mm/1600mm/1600mm |
| Driving system | one cylinder&cables |
| Unlock release | electrical unlocking system |
| Lifting speed | 2m/min |
| Control system | Button on small control box |
| Package size | 5450*650*1550mm*2400kg |
| Power supply | 100-480V, 1/3P, 50/60Hz |
Real Pictures:
Video:
🔹 Product Overview – HFPP‑I Series 4‑Level Parking Stacker
The HFPP‑I Series 4‑Level Parking Stacker is an advanced version of the standard HFPP multi‑layer parking system, designed for customers who require maximum parking efficiency, enhanced structural stability, and long‑term reliability. Unlike the standard HFPP (3 levels, including ground), HFPP‑I provides four vehicle positions (ground level + 3 stacked levels), effectively increasing parking capacity by one extra car in the same footprint.
The HFPP‑I features a reinforced frame design: the columns and support members are extended and welded into a single integrated structure, significantly improving stability under load and reducing frame flex or vibration during repeated lifting cycles. Its hydraulic lifting system with steel cable drive ensures smooth, synchronized movement across all levels, while mechanical anti‑fall locks and electrical unlocking mechanisms enhance daily operational safety.
This makes HFPP‑I ideal for residential garages, underground parking, commercial parking facilities, valet zones, and urban high‑density parking areas where both safety and increased parking capacity are priorities.
🔹 Typical Applications
The HFPP‑I Series is widely used in:
Residential multi‑car garages
Apartment and condominium parking areas
Commercial and office building parking lots
Valet parking and managed lots
Car dealerships and vehicle storage centers
Its ground level + 3 stacked levels design allows four vehicles to occupy a single footprint, improving efficiency and maximizing available space.
🔹 Safety Design & Structural Advantages
HFPP‑I incorporates advanced safety and structural features:
Reinforced welded columns forming an integrated, stable frame
Uniform extended column height for all levels
Hydraulic cylinder with steel cable drive for smooth vertical movement
Mechanical anti‑fall locks at each level
Limit switches and emergency stop controls
Corrosion‑resistant surface finish for long-term durability
The combination of extra level + reinforced frame ensures the HFPP‑I provides safe, reliable operation under high-frequency use and for multiple vehicles simultaneously.
🔹 Installation & Operation Notes
Ground-mounted installation on reinforced concrete floors, pit optional
Integrated welded frame simplifies alignment and ensures long-term stability
Modular assembly allows efficient on-site setup
Customizable platform widths and lifting heights based on project requirements
Operated via control panel or key switch, with safety limit switches and mechanical locks
Proper site preparation ensures smooth, safe operation for all four levels.
❓ Frequently Asked Questions (FAQ)
Q1: How many cars can HFPP‑I park?
HFPP‑I features 4 vehicle positions: ground level plus 3 stacked levels, offering one more car than the standard HFPP.
Q2: What is the main difference between HFPP and HFPP‑I?
HFPP‑I adds one extra stacked level and uses reinforced welded columns, providing higher parking capacity, greater stability, and improved long-term durability.
Q3: Can it handle SUVs or larger vehicles?
Yes. Each platform is rated to accommodate sedans, SUVs, or light commercial vehicles, depending on project specifications.
Q4: Does installation require a pit?
No. The HFPP‑I can be installed on a reinforced concrete floor, pit optional.
Q5: How is the lift operated?
Operation is via control panel or key switch, combined with mechanical anti-fall locks and safety limit switches.
If this model doesn’t fully meet your needs, you can explore our full range of car parking lifts here and choose the most suitable solution for your project.
