FCL-4

微信图片 20251016164503 4939 19

Four-Post Cargo Lift

Heavy-Duty Hydraulic Vertical Goods Lifting Solution

Product Introduction

The Four-Post Cargo Lift is a heavy-duty vertical lifting solution designed for transporting goods between different floors in industrial and commercial environments.
With a robust four-post guide rail structure and a hydraulic drive system, it ensures stable, smooth, and safe lifting performance even under heavy loads.

This cargo lift is widely used in warehouses, factories, logistics centers, and industrial facilities where high load capacity and operational stability are essential.

Main Features & Advantages

Four-Post Heavy-Duty Structure

The four-column design provides excellent structural strength and stability, ensuring balanced load distribution and safe lifting of heavy goods.

Hydraulic Drive System

Powered by a reliable hydraulic lifting system, delivering smooth vertical movement, low noise operation, and minimal maintenance requirements.

High Load-Bearing Capacity

Designed to handle heavy-duty lifting tasks, with load capacities customizable to meet different industrial application needs.

Flexible Customization Options

Platform size, lifting height, load capacity, and enclosure configuration can be customized according to site conditions and operational requirements.

Stable and Precise Operation

The guide rail structure ensures precise vertical movement, reducing sway and enhancing safety during lifting.

User-Friendly Control System

Simple and intuitive control via push-button or control panel allows efficient and safe operation.

Typical Applications

The Four-Post Cargo Lift is widely used in:

  • Warehouses and logistics centers
  • Factories and manufacturing plants
  • Industrial workshops and production lines
  • Storage facilities with multi-floor layouts
  • Commercial buildings requiring heavy goods transportation

It is especially suitable for lifting heavy or bulky goods with high safety and stability requirements.

Safety Design Concept

Safety is a core design principle of the Four-Post Cargo Lift.

The system is equipped with comprehensive safety protection devices, including mechanical safety locks, limit switches, overload protection, emergency stop buttons, and protective enclosures.
The rigid steel structure and synchronized hydraulic lifting system ensure stable support and controlled movement throughout the lifting process.

These safety measures provide reliable protection for operators and goods during daily operation.

Installation & Site Requirements

  • Suitable for indoor installation; outdoor installation available with additional protective treatments
  • Flat and reinforced concrete foundation required
  • Can be installed with or without an enclosed shaft depending on site conditions
  • Power supply configurable according to local electrical standards
  • Detailed installation drawings and technical documentation provided before delivery

Professional installation guidance ensures safe setup and long-term reliable performance.

Why Choose Us

  • Professional manufacturer specializing in hydraulic cargo lifting equipment
  • Extensive experience in heavy-duty vertical lifting solutions
  • Flexible customization to meet different industrial requirements
  • Strict quality control and high-quality components
  • Reliable technical support before and after delivery

We are committed to delivering safe, durable, and efficient lifting solutions for industrial and commercial applications.

Looking for a Heavy-Duty Cargo Lifting Solution for Your Project?

Share your lifting height, platform size, load capacity, and site conditions with us, and our engineering team will provide:

  • A customized four-post cargo lift solution
  • Detailed technical drawings and specifications
  • A clear quotation with optional configurations

👉 Contact us today to get your customized Four-Post Cargo Lift solution.

 

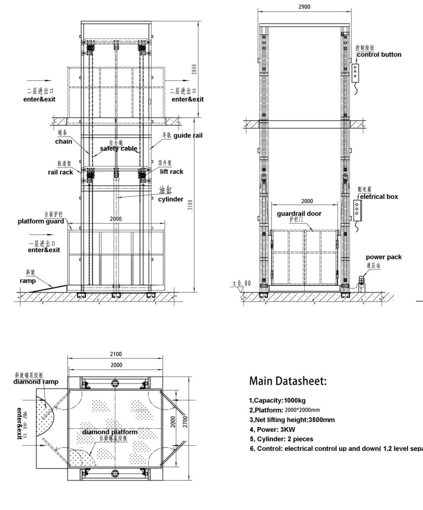
Size Drawing:

fcl size drawing

Data Sheet:

ModelFCL
Lifting capacity2000kg – 10000kg
Platform length2000mm – 6500mm
Platform width2000mm – 5000mm
Lifting height2000mm – 13000mm
Power pack5.5kW hydraulic pump
Available voltage of power supply200V–480V, 3 Phase, 50/60Hz
Operation modeButton
Operation voltage24V
Rising / descending speed3-6m/min
FinishingPowder coating

Project:

cargo lift project