fpl

fpl

Four Post Floor Lifting Platform with Pneumatic Unlocking

Reliable Vertical Parking and Vehicle Storage Solution

The Four Post Floor Lifting Platform with Pneumatic Unlocking is a practical and efficient parking solution designed to maximize parking space by creating an additional vehicle level above ground.

With a robust four-post structure and a pneumatic safety lock release system, this platform ensures stable lifting, secure parking, and smooth operation. It allows one vehicle to be safely parked above another, making it ideal for space optimization projects.

This lifting platform is suitable for residential buildings, commercial garages, car dealerships, and showrooms where safety, reliability, and efficient use of space are essential.

Main Features & Advantages

Pneumatic Safety Lock Release System

The pneumatic unlocking system enables smooth and reliable safety lock release through air-powered operation, improving overall safety and operational efficiency.

Strong Structural Design

Manufactured from high-strength steel, the four-post structure provides excellent stability, reliable load-bearing performance, and long-term durability.

Smooth Hydraulic Lifting

The hydraulic lifting system ensures stable, quiet, and synchronized vertical movement, offering a comfortable and controlled lifting experience.

Space-Efficient Vertical Parking

The platform creates an additional parking level, significantly increasing parking capacity without expanding the building footprint.

User-Friendly Operation

Simple control operation allows convenient lifting and lowering, making the system easy to use for daily parking and vehicle storage.

Typical Applications

The Four Post Floor Lifting Platform with Pneumatic Unlocking is widely used in:

  • Residential garages and private houses
  • Commercial parking garages
  • Car dealerships and showrooms
  • Vehicle storage and service areas

It is especially suitable for projects that require a safe and cost-effective solution to increase parking capacity.

Safety Design Concept

Safety is a fundamental element in the design of this four-post lifting platform.

The system is equipped with pneumatic safety locks, limit switches, and emergency stop devices to ensure controlled and secure operation.
The rigid four-post structure provides stable load support throughout the lifting and parking process.

Multiple safety protection mechanisms work together to safeguard both vehicles and operators during daily use.

Installation & Site Requirements

  • Suitable for indoor installation
  • Reinforced and level concrete foundation required
  • Compressed air supply required for pneumatic unlocking system
  • Power supply configurable according to local electrical standards

Detailed installation drawings and technical guidance are provided prior to shipment to ensure smooth installation and reliable long-term operation.

Why Choose Us

  • Professional manufacturer of parking and vehicle lifting equipment
  • Extensive experience in export and international projects
  • Stable product quality with strict quality control standards
  • Comprehensive technical support before and after delivery

We are committed to providing practical, safe, and space-efficient parking solutions for a wide range of applications.

Looking for a Parking Solution for Your Project?

Share your site conditions, vehicle type, and parking requirements with us. Our engineering team will provide:

  • A customized four-post parking solution
  • Detailed drawings and technical specifications
  • A clear quotation with configuration options

👉 Contact us today to learn more about our Four Post Floor Lifting Platform with Pneumatic Unlocking.

 

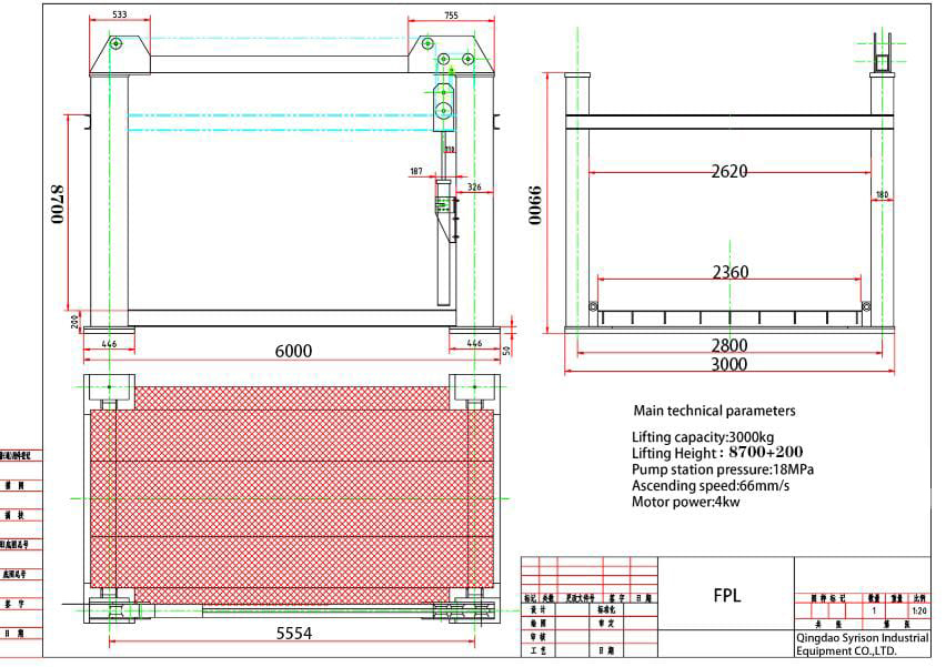
Size Drawing:

car elevator size drawing
Car lift dimensions and lifting height can be adjusted based on project requirements.

Data Sheet:

ModelFPL
Lifting capacity2000kg – 10000kg
Platform length2000mm – 7000mm
Platform width2000mm – 5000mm
Lifting height2000mm – 13000mm
Power pack5.5kW hydraulic pump
Available voltage of power supply200V–480V, 3 Phase, 50/60Hz
Operation modeButton
Operation voltage24V
Rising / descending speed3.6m/min
FinishingPowder coating OR Hot Galvanized

Part Projects:

Video:

🔹 Product Overview – Four Post Parking Lift (FPL-2 Series)

The FPL-2 Series Four Post Parking Lift is a classic, heavy-duty vertical parking solution designed for customers who require dependable vehicle stacking and robust load capacity. This model delivers a reliable way to increase parking efficiency by providing two car parking spots within the footprint of one, ideal for both residential and commercial applications. Its four post design ensures stable support and evenly distributes weight across all columns, making it especially suitable for SUVs, large sedans, and high-use parking environments.

FPL-2 stands out for its smooth hydraulic lifting performance and manual unlock system, allowing operators to raise and lower vehicles easily and safely. Thanks to its classic runway platform design, it’s a practical choice for garages, parking lots, and vehicle storage facilities where space utilization and reliability are key. This series is engineered to meet rigorous performance expectations while maintaining a cost-effective installation process, with no requirement for complicated civil works or pits.

Whether you’re expanding parking capacity in a home garage, apartment complex, or dealership parking structure, the FPL-2 Series provides a durable and user-friendly solution for everyday vehicle storage needs.

🔹 Typical Applications

The FPL-2 Four Post Parking Lift is widely used in applications such as:

Private garages and villa parking systems

Apartment and condominium parking facilities

Commercial property parking areas

Car dealerships and rental fleet storage

Car storage and collector facilities

Its four post construction delivers high stability and easy drive-on/drive-off operation, making it especially suitable where vehicles are parked daily and space efficiency is critical.

🔹 Safety Design & Structural Advantages

Safety and durability are the core strengths of the FPL-2 series:

Robust four-post framework offers superior load distribution and structural rigidity

Hydraulic lifting system provides smooth, controlled ascent and descent

Mechanical anti-fall locks engage securely at multiple heights

Platform design with wide drive-through for easy vehicle access

Manual unlock release system ensures controlled lowering and safe operation

These design features help ensure safe daily operations, and the lift is suitable for both indoor and semi-outdoor environments when properly installed.

🔹 Global Reliability & Proven Performance

The FPL-2 series has been adopted in diverse parking and storage projects across markets worldwide, demonstrating its consistent performance, long service life, and adaptability to various parking site conditions. Whether for frequent use in commercial settings or steady residential applications, the FPL-2 model has a strong track record of contributing to improved parking efficiency and user convenience.

🔹 Installation & Operation Notes

No pit required, reducing construction cost and time

Suitable for installation on a reinforced concrete floor

Simple manual unlock operation for controlled lowering

Platform width and lifting height can be customized to match project needs

Full technical documentation and installation guidance available

Proper site preparation and adherence to installation guidelines ensure the lift delivers long-term performance and safety.

❓ Frequently Asked Questions (FAQ)

Q1: What types of vehicles can the FPL-2 Four Post Parking Lift support?
The FPL-2 Series is designed to support sedans, SUVs, and larger vehicles, with load capacity depending on the specific configuration and model option.

Q2: How does the FPL-2 lift differ from other four post parking lifts?
FPL-2 is a classic four post design with a manual unlock system and classic runway platforms, combining stable operation with cost-effective installation and daily usability.

Q3: Does this parking lift require a pit or civil construction?
No. The FPL-2 Four Post Parking Lift is designed for installation on a solid concrete surface with no pit required, which simplifies project planning and cost.

Q4: Is the manual unlock release safe and easy to use?
Yes. The manual unlock system provides controlled lowering, with mechanical safety devices to protect against unexpected movement, enhancing operational safety.

Q5: Can the FPL-2 be customized?
Yes. Platform width, lifting height, and surface treatments can be adjusted to match specific parking requirements and vehicle sizes.

If this model doesn’t fully meet your needs, you can explore our full range of car platform lift here and choose the most suitable solution for your project.